Sonderleuchten
Verleihen Sie Ihrem Projekt etwas Einzigartiges
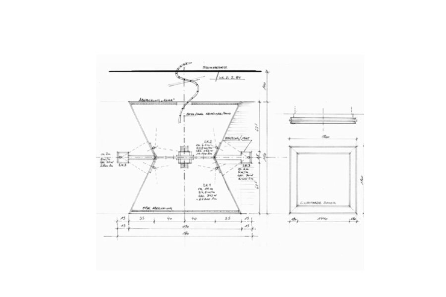
Wie ein maßgeschneiderter Anzug werden Sonderleuchten perfekt an Ihr Projekt angepasst. Art, Größe, Material, Metalloberfläche, lichttechnische Eigenschaften… jedes Detail wird individuell abgestimmt. Alle Sonderleuchten werden in enger Zusammenarbeit und nach den genauen Vorstellungen und Anforderungen unserer Kunden gefertigt.
Hersteller von Sonderleuchten
Als Leuchtenhersteller stehen wir Ihnen gerne mit all unserer Erfahrung zur Umsetzung Ihrer Sonderleuchte von Anfang an beratend zur Seite. Sei es für kleinste optische Anpassungen zur idealen lichttechnischen Ausleuchtung oder zur optimalen Auswahl des Grundmaterials. Hinsichtlich Brandschutzauflagen, Bestimmungen zu Traglasten oder der Einhaltung statischer- und elektrotechnischer Maßnahmen, stehen wir Ihnen mit unserer Expertise gerne zur Verfügung. Einen erfahrenen Partner an seiner Seite zu wissen, ist ein großer Vorteil.
Erfahrung ist durch nichts zu ersetzen…außer durch noch mehr Erfahrung! Das gilt insbesondere für die Herstellung von Sonderanfertigungen. Sonderleuchten sind Highlights und „Hingucker“, die jedem Raum die gewisse Extravaganz verleihen. Kleinigkeiten sind darum oft entscheidend. Eine realistische Preiskalkulation und die Einhaltung der kommunizierten Liefertermine sind ebenso wichtig.
CNC-Computergesteuerten voll- und halbautomatischen Maschinen
Unsere vielseitige, metallverarbeitende Produktionsstätte legt den Grundstein für eine durchgehende Herstellung. Mit unseren CNC-Computergesteuerten voll- und halbautomatischen Maschinen können wir feinmechanische Komponenten sogar in kleinster Stückzahl eigenständig produzieren. Ergänzend bietet unsere große Schweißerei mit plasmanitrierten Schweißtischen und den neuesten Schweißgeräten für WIG, MIG und MAG für alle Metallarten die Möglichkeit, jede Grundform der Sonderleuchte präzise und in sehr großen Dimensionen, an unserem Standort in Rinteln zu produzieren.
Durch eine großzügige Lackier- und Pulveranlage können selbst riesige Leuchten aus einem Stück in der gewünschten Metalloberfläche behandelt werden. Über sämtliche RAL- Sikkens- und NCS- Töne hinaus bieten wir auch noch eine Vielzahl von Sonderfarbtönen. Ob künstlich verrostet, Messing brüniert, mit Blattgold belegt oder mit einer Betonoptik versehen, sind wir in der Lage, unsere Leuchten mit Spezialfarben und Oberflächen zu behandeln. Der Kreativität sind somit keine Grenzen gesetzt.



Schnell Kontakt Rückruf
Neben der Metallverarbeitung produzieren wir auch Lampenschirme an unserem Standort. Computergesteuerte Plotteranlagen gewährleisten genaue Zuschnitte zur weiteren Verarbeitung. Es bedarf zur Herstellung von Lampenschirmen eine Menge Handarbeit, um die gewünschten Stoffe mit den Schirmgestellen sauber zu verbinden. Wir bieten Ihnen eine große Auswahl an Materialien und Stoffen in verschiedensten Farben und Strukturen, in schwer entflammbar oder nicht brennbar. Natürlich können wir auch vom Kunden gestelltes Material zu Lampenschirmen weiter verarbeiten.
Auch die Elektrifizierung und Endmontage erfolgt unter unserem Dach. Längst hat sich die LED Technologie gegenüber den herkömmlichen Leuchtmitteln durchgesetzt. Durch die neuen und flexiblen LED Lichtquellen können völlig neue Formen und Größen realisiert werden. Über DALI, Phasenabschnitt ,1-10 Volt oder DMX können wir jede Schnittstelle zur Ansteuerung anbieten. Selbstverständlich ist es möglich, jede Leuchte mit der gewünschten einzelnen Farbtemperatur, tunable white oder RGB/ RGBW Farbwechsel auszustatten.
Der wichtigste Part sind sicherlich unsere hervorragend ausgebildeten Mitarbeiter, die seit Jahren und Jahrzehnten mit Leidenschaft, handwerklichem Geschick und Liebe zum Detail die Theorie in die Praxis umsetzen. Und dabei immer den höchsten Qualitätsanspruch an sich selbst und das Produkt haben.
Gemäß ISO-9001 Richtlinien werden alle Leuchten innerhalb der Fertigungsstufen auf technische Funktionalität geprüft. Zusätzlich erfolgt vor dem Versand aller hergestellten Produkte eine optische Qualitätsprüfung. Dieses garantiert Ihnen ein perfektes Produkt Made in Germany.
[/cq_vc_modal]
Unsere Sonderleuchten Referenzen:
Information
Projekt: Franken-Center – Nürnberg
Design: ECE und Florian Reißmann
Lichtplanung: ECE und Florian Reißmann
Leuchtenhersteller: Peters Design
Typ: Pendelleuchte / Sonderanfertigung
Bereich: Einkaufspassage
Information
Projekt: Hauptbahnhof – Leipzig
Design / Innenarchitektur: ECE Projektmanagement GmbH
Lichtplanung: Tobias Link Lichtplanung / ECE
Leuchtenhersteller: Peters Design
Typ: Stehleuchte / Sonderanfertigung
Bereich: Einkaufspassage
Information
Projekt: Hilton Hotelbar – München
Design / Lichtplanung: Engels GmbH
Leuchtenhersteller: Peters Design
Typ: Pendelleuchte / Sonderanfertigung
Bereich: Gastronomie
Information
Projekt: Hilton Hotelbar – München
Design / Lichtplanung: Engels GmbH
Leuchtenhersteller: Peters Design
Typ: Pendelleuchte / Sonderanfertigung
Bereich: Gastronomie
Information
Projekt: Kickz Zalando
Design / Lichtplanung: Licht01
Leuchtenhersteller: Peters Design
Typ: Pendelleuchte / Sonderanfertigung
Bereich: Shop
Information
Projekt: Einkaufszentrum – Wust
Design: Drees & Sommer
Lichtplanung: Kober Lichtplanung
Leuchtenhersteller: Peters Design
Typ: Pendelleuchte / Sonderanfertigung
Bereich: Einkaufspassage
Sie interessieren sich für Sonderleuchten und individuelle Lampen direkt vom Hersteller?
Sprechen Sie uns gerne an
Unsere Fachberater und unseren Vertrieb erreichen Sie unter:
Telefon: +49 (0)5751 – 9611 – 0
E-Mail: info@petersdesign.de
Senden Sie uns Ihre Anforderungen
Sie können uns auch über unser Kontaktformular erreichen und dabei gleichzeitig weitere Informationen wie Skizzen oder Bilder hochladen. Ihre Daten und Dokumente schützen wir gemäß der neuen DS-GVO.
Unsere Anschrift
Peters Design GmbH
Extertalstrasse 10
31737 Rinteln
Im Weserbergland




















































































